
一、产品概述
DC24V供电,将来自工业现场的电流或电压信号经隔离转换成标准信号传送到控制室、PLC、DCS等。
内部采用高效的磁电隔离技术,输入、输出、电源之间相互隔离,具有高精度、高线性度、低温漂等特点。
DIN导轨独立式安装方式;采用拔插式结构,主机和底座可以带电热插拔,便于安装维护。
二、技术参数
▲ 输入端 输入信号:4-20mA;0-20mA 配电电压:24V(最大驱动电流30mA) 输入阻抗:≤50Ω
▲ 输出端 输出信号:4-20mA;0-20mA;0-5V;0-10V 输出负载电阻:RL≤500Ω(输出为电流信号时) RL≥10KΩ(输出为电压信号时)
▲ 基本参数 电源:DC24V±10% 消耗电流:≤50mA(一进一出,24V供电,配电输入,20mA输出时) ≤70mA(一进二出,24V供电,配电输入,20mA输出时) ≤100mA(二进二出,24V供电,配电输入,20mA输出时) 基本精度:0.1%F.S. 温度漂移:0.005%F.S./℃(-20℃~+55℃) 响应时间:≤10mS(0-90%)(TYP) 绝缘强度:1500VAC/1min(输入、输出、电源之间) 绝缘电阻:≥100MΩ(输入、输出、电源之间) 工作温度范围:-20℃~+55℃ 电磁兼容性:符合GB/T 18268(IEC61326-1) 适用现场设备:电压信号输出设备;电流源
三、保护参数
▲上电冲击保护,上电缓启动>20ms
▲电源反接保护,反接电压<-40V
▲配电保护,配电输出钳位电流28mA(±4mA)
▲输出保护,输出钳位电流25mA(±1mA)
▲端口误接和浪涌冲击保护: 1.电源-输入-输出自身回路的两个端口之间,可承受外回路电压<±24V 2.输入-输出-电源三者之间误接形成的短路,开路,不损坏。 可承受外电压2500V(1分钟,不损坏)
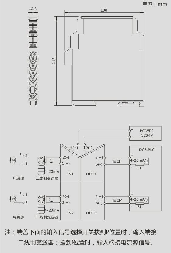
四、外形尺寸与接线图
LYS-IP系列电流输入配电隔离器
一、产品概述 DC24V供电,将来自工业现场的电流或电压信号经隔离转换成标准信号传送到控制室、PLC、DCS等。 内部采用高效的磁电隔离技术,输入、输出、电源之间相互隔离,具有高精度、高线性度、低温漂等特点。 ...
扫描二维码分享到微信